Abu Alnaga I01

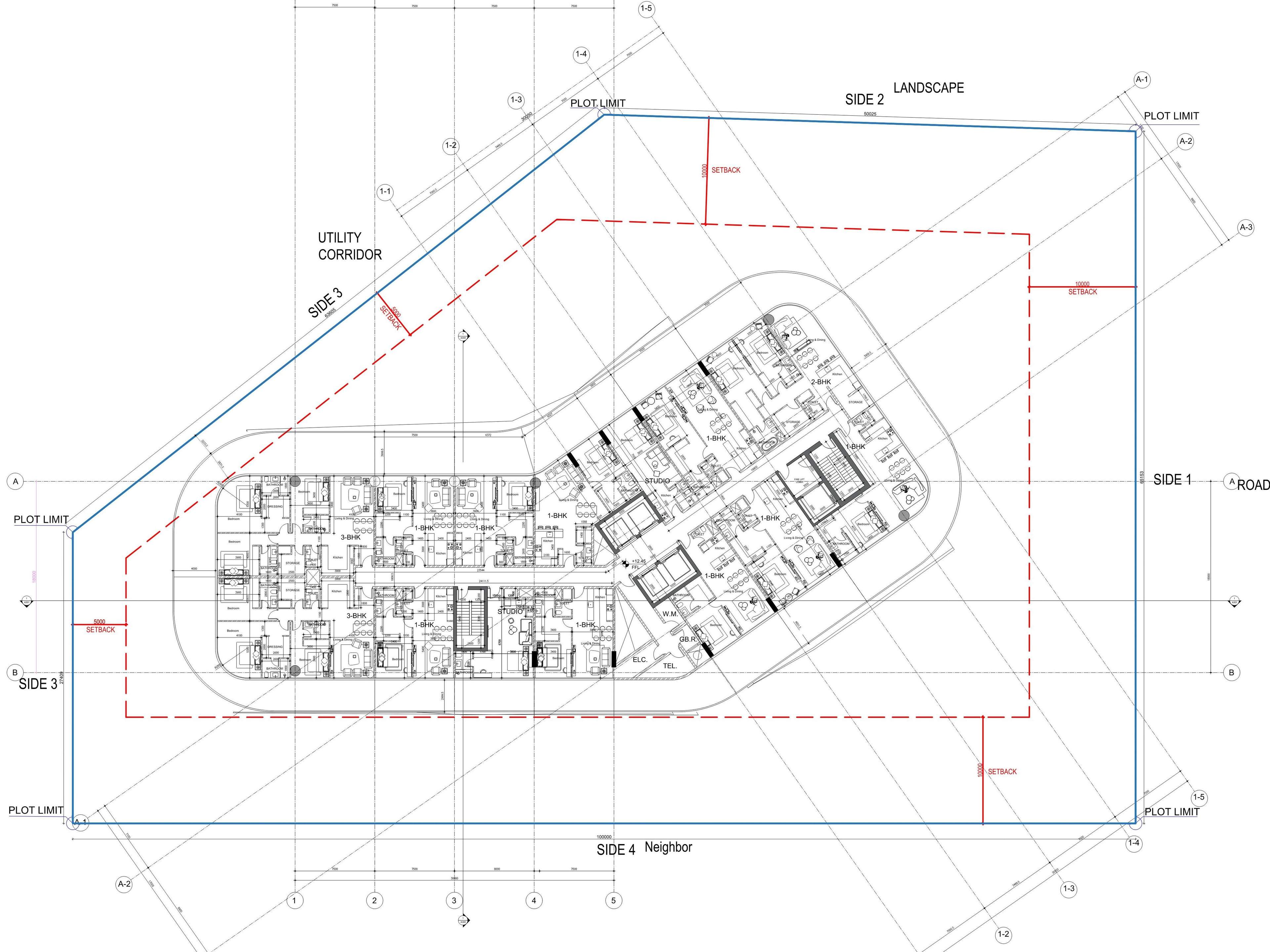
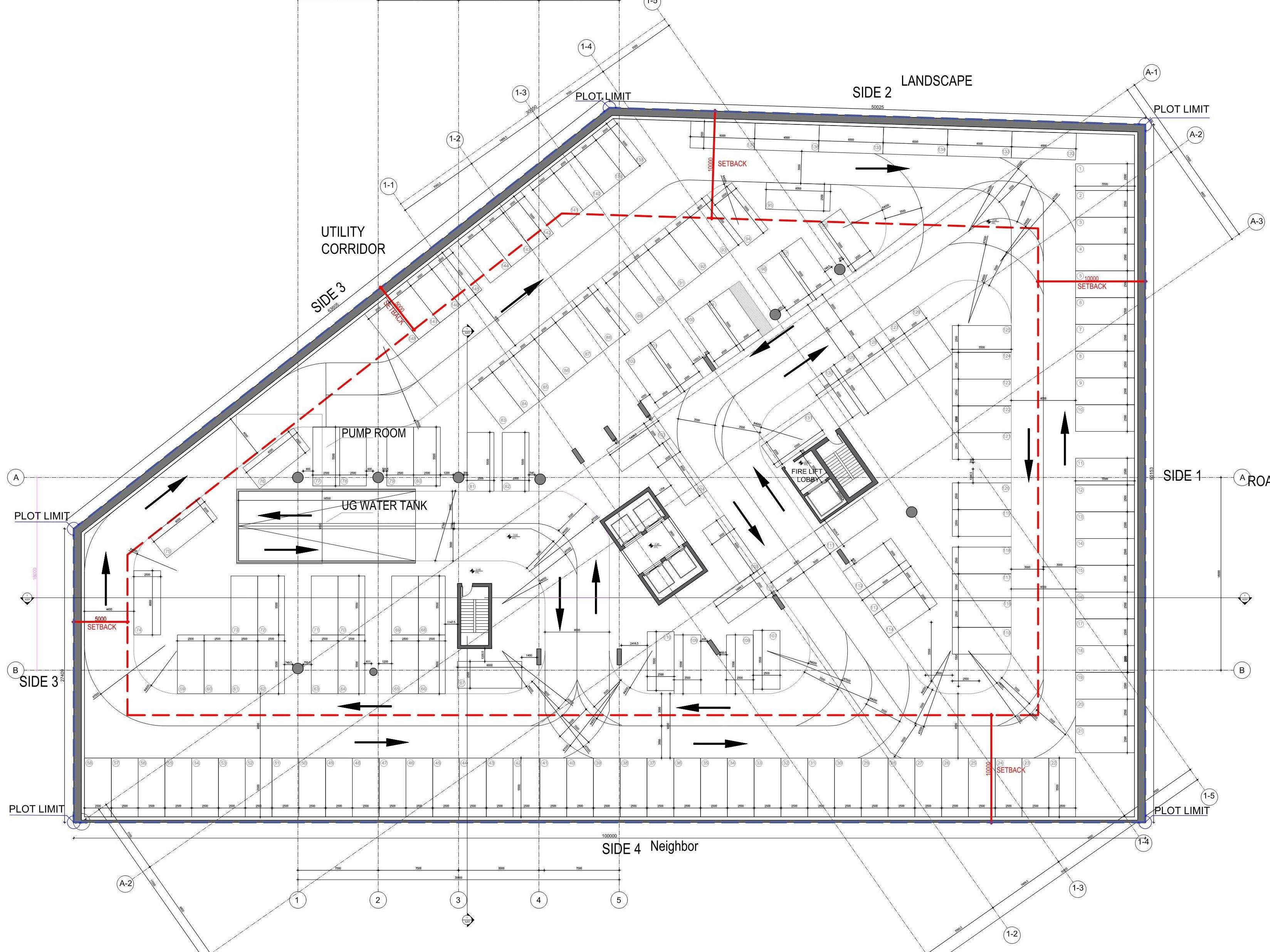
Project overview

B+G+16 Floors+R "Residentail"

Direct Deliverables

Conceived and led the architectural vision for a high-end residential development in Dubai, directing multidisciplinary teams, curating the client brief through close engagement, and balancing maximum efficiency and saleable area with a distinctive design, culminating in successful DDA approval.

Details

Size

45,500 SQ.M

Client

Abu Alnaga Developments

Date

2026

Status of the project

Priliminary Stage

Location

Dubai, UAE

Role

Design Manager

Direct scope

Pre-concept to Building permit

Sketches

Ahmed Eid

UAE, Dubai, JVC | (+971)561651671 | aeid.gadalla@gmail.com

© Ahmed Eid, 2025