Abu Alnaga J01

Project overview

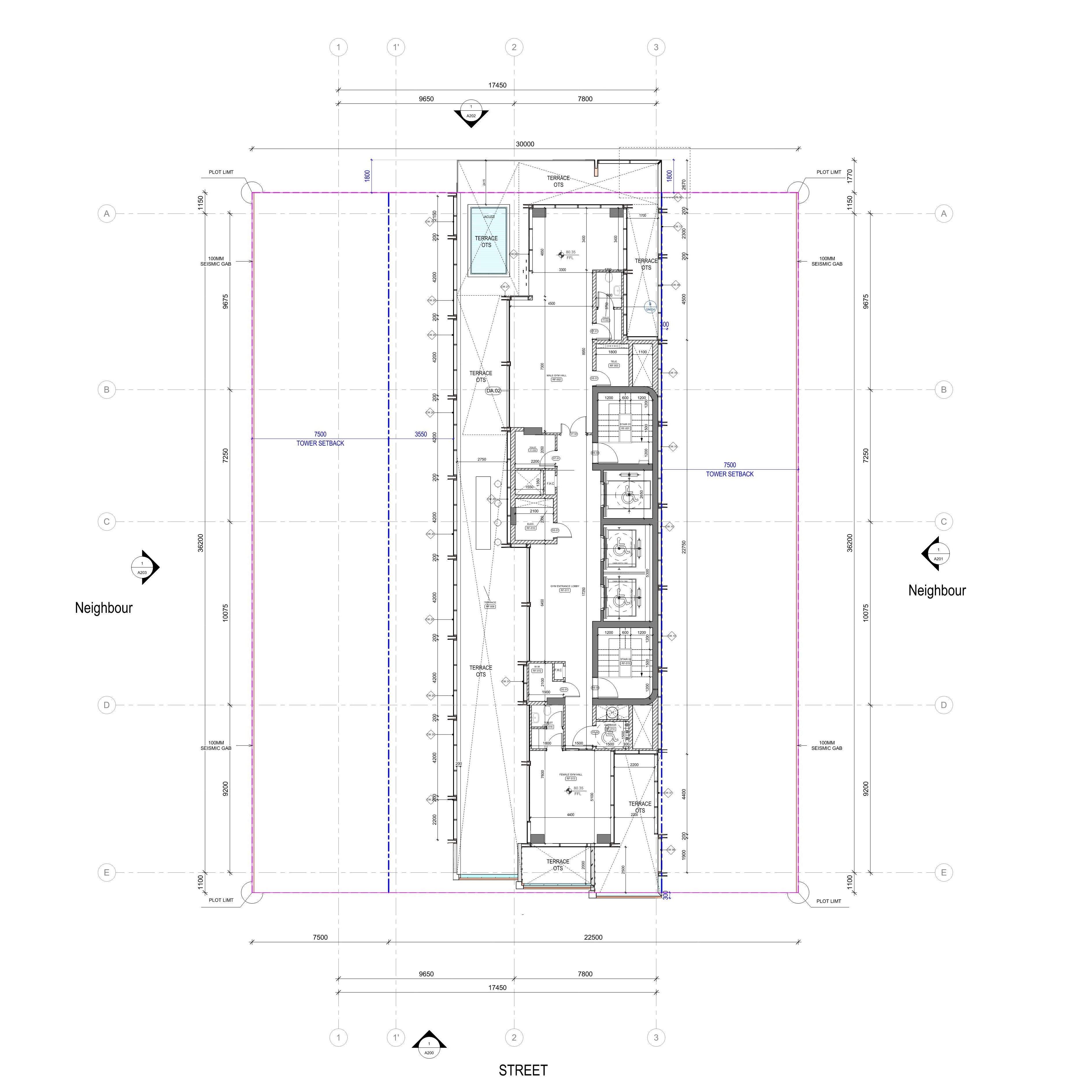
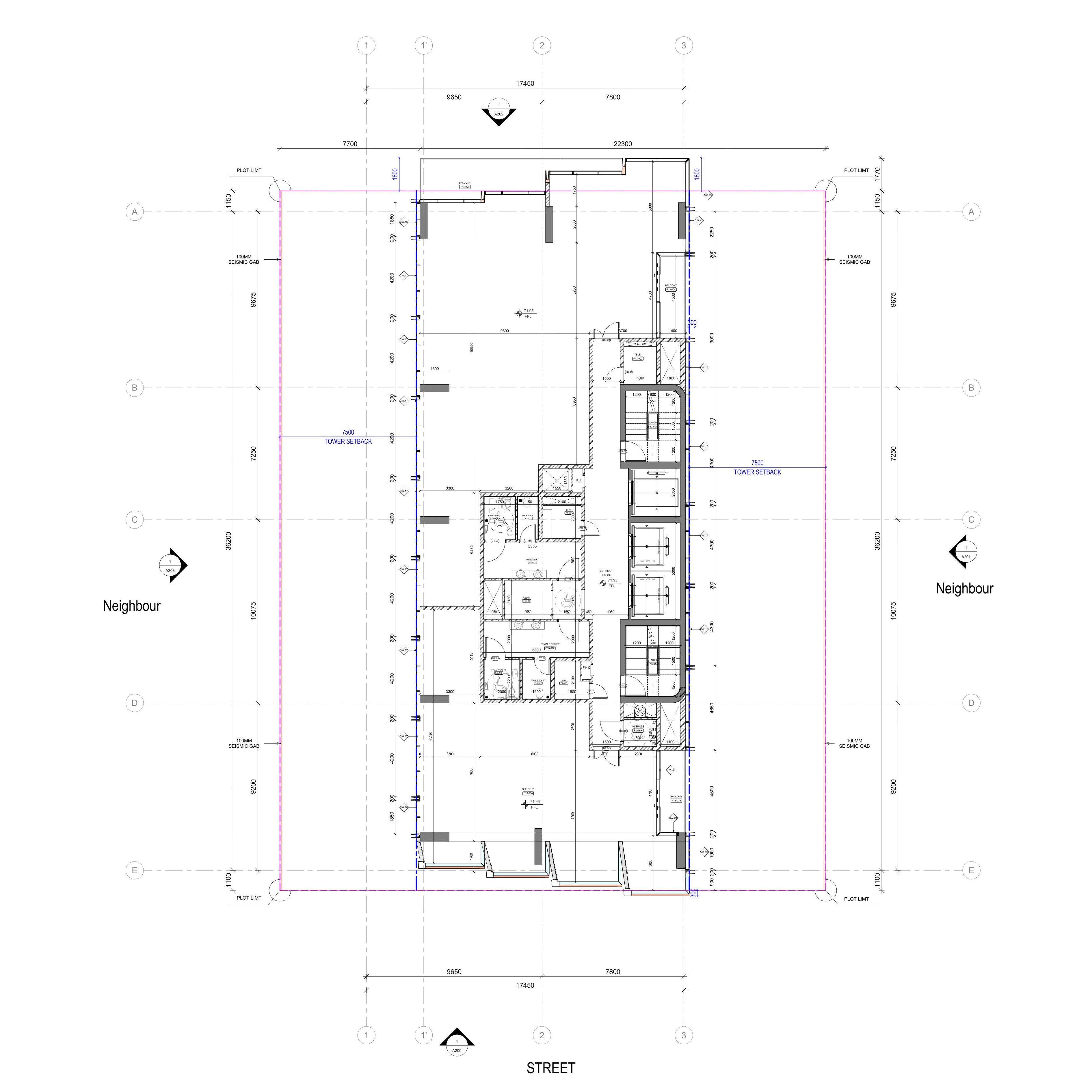
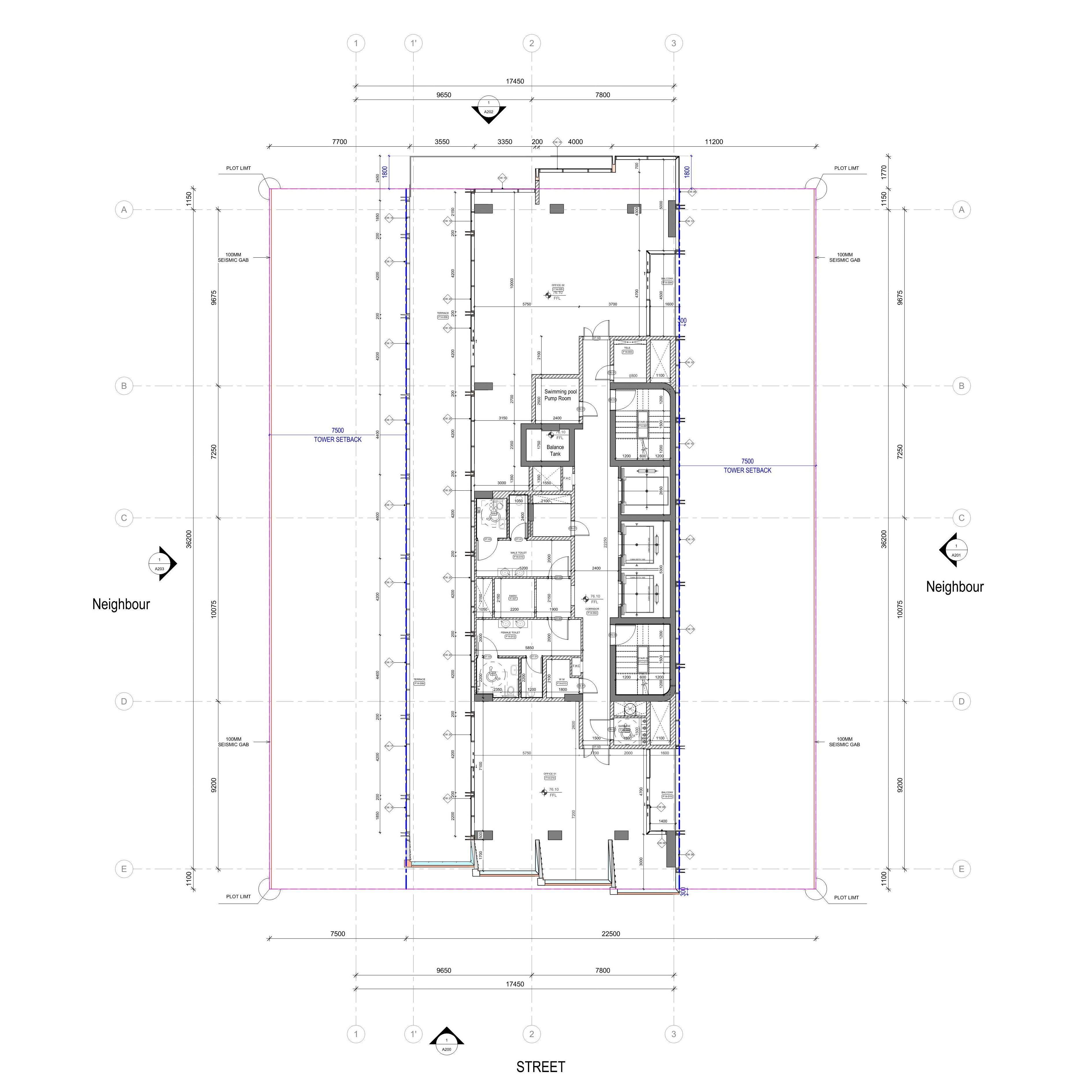
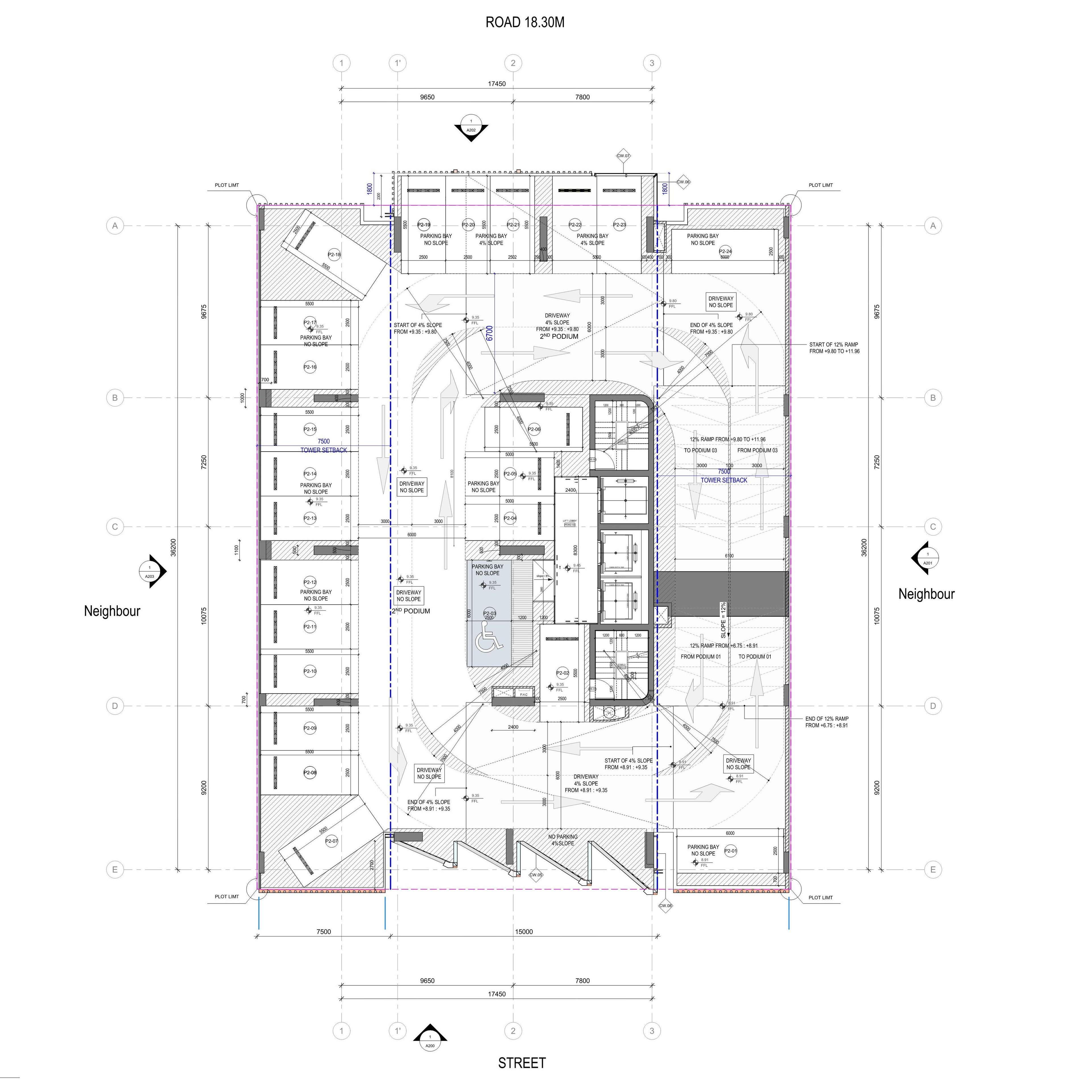
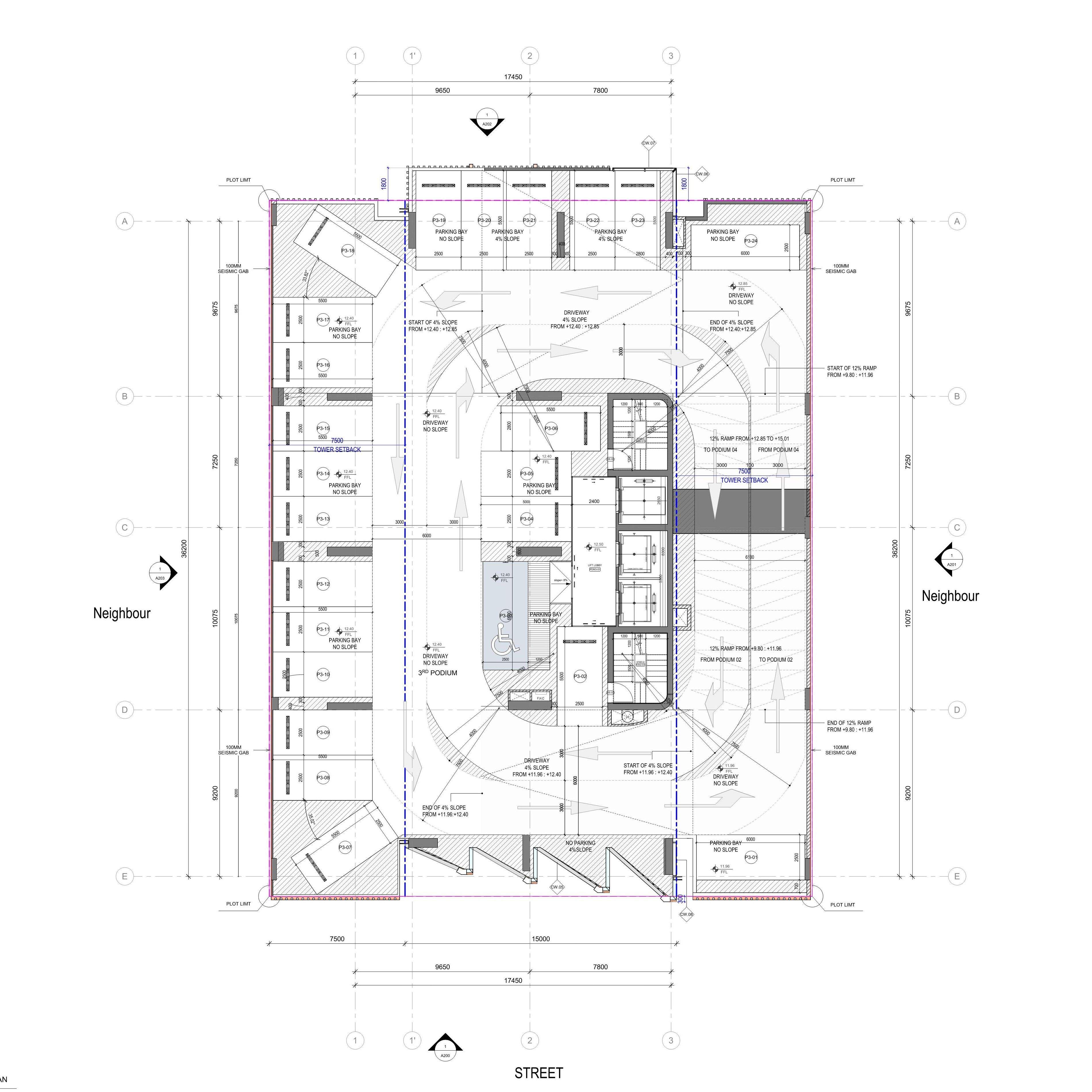
G+4P+14FLOORS+ROOF (Offices)

Direct Deliverables

Led the full design journy, taking full ownership from concept through to approvals. Managed and coordinated multidisciplinary teams, ensuring seamless integration of architectural, structural, and MEP systems throughout all project stages. Maintained direct client engagement through weekly meetings, aligning design development with project goals and stakeholder expectations. Successfully oversaw and secured all required authority approvals, ensuring compliance with local regulations and smooth project progression.

Details

Size

14,600 SQ.M

Client

Abu Alnaga Developments

Date

2026

Status of the project

Building Permit obtained

Location

Dubai, UAE

Role

Design Manager

Direct scope

Pre-concept to Building permit

Sketches

Interior Shots

Ahmed Eid

UAE, Dubai, JVC | (+971)561651671 | aeid.gadalla@gmail.com

© Ahmed Eid, 2025