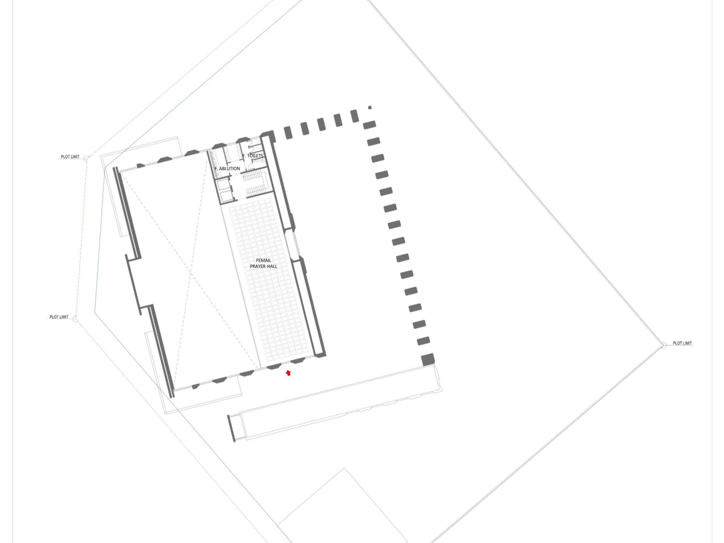
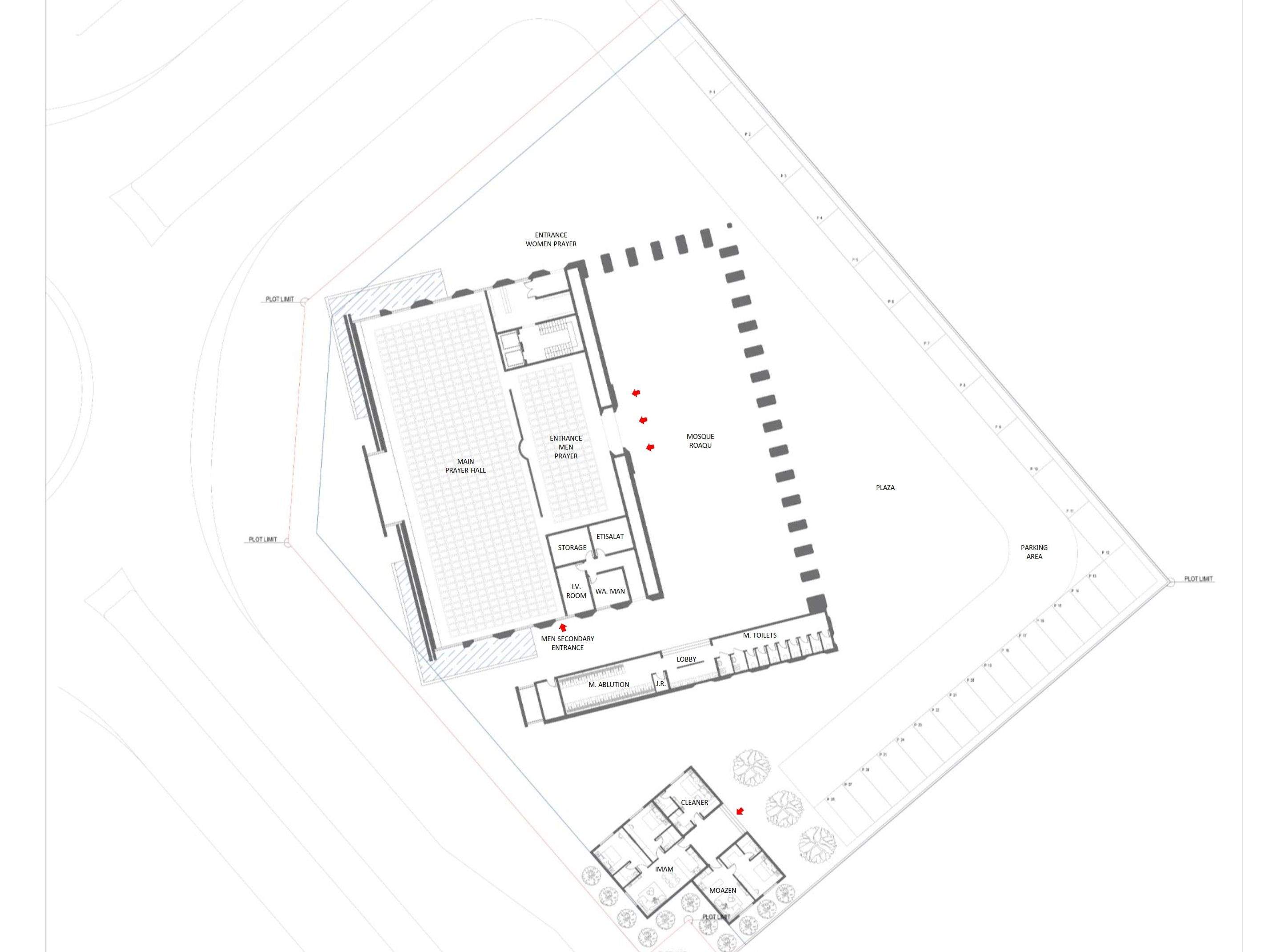
Food Tech Valley Masjid

Project overview

Food Tech Valley Masjid, 1700 worshipper

Direct Deliverables

Taking over the project from the concept stages until obtaining the project’s building permit, handling all client's requirements, modifications and design workshops.

Details

Size

2,700 SQ.M

Client

Wasl Properties

Date

2025

Status of the project

Under Permitting

Location

Dubai, UAE

Role

Design Manager

Direct scope

Pre-concept to Building permit

Sketches

Ahmed Eid

UAE, Dubai, JVC | (+971)561651671 | aeid.gadalla@gmail.com

© Ahmed Eid, 2025