Malina W1

Project overview

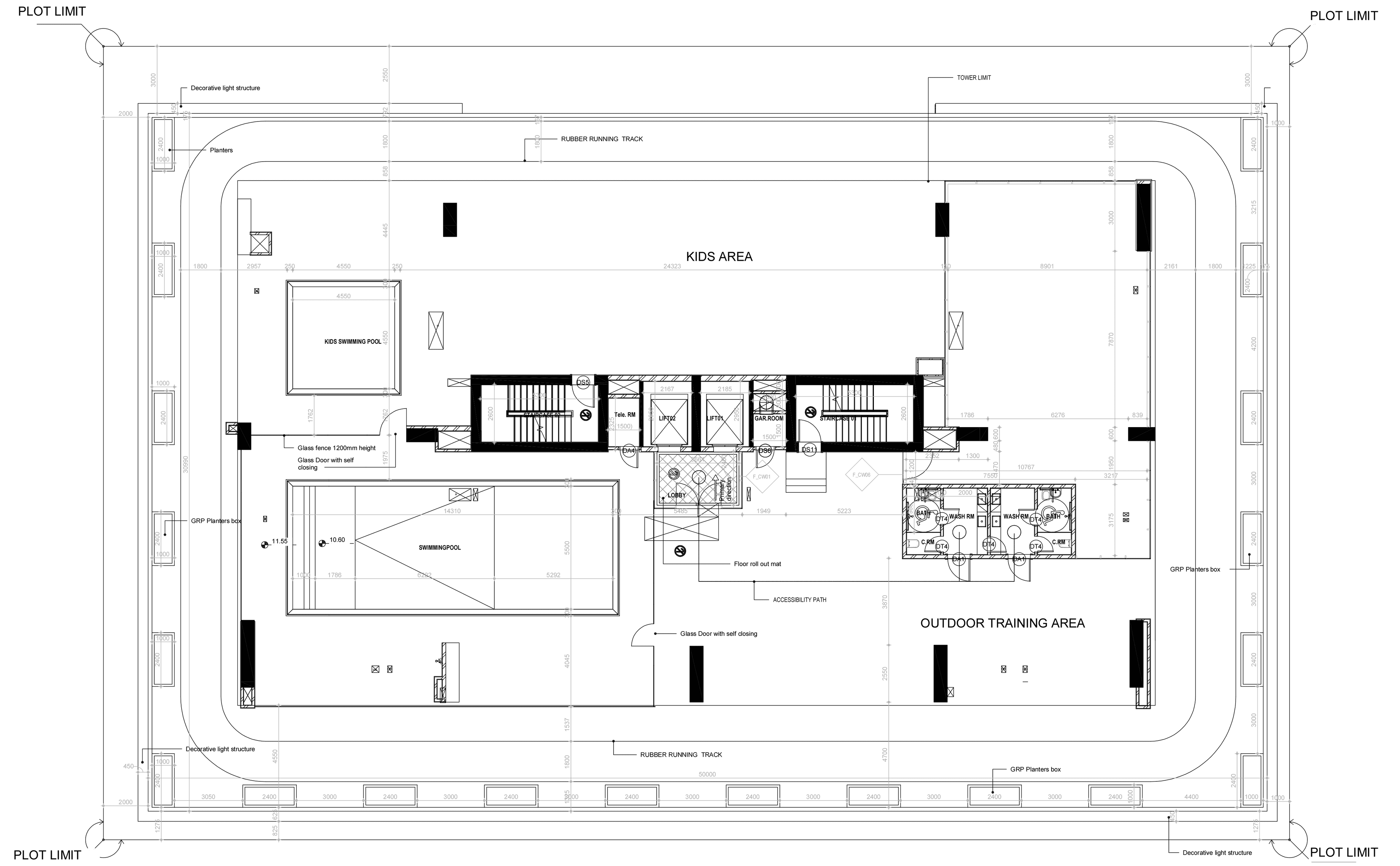
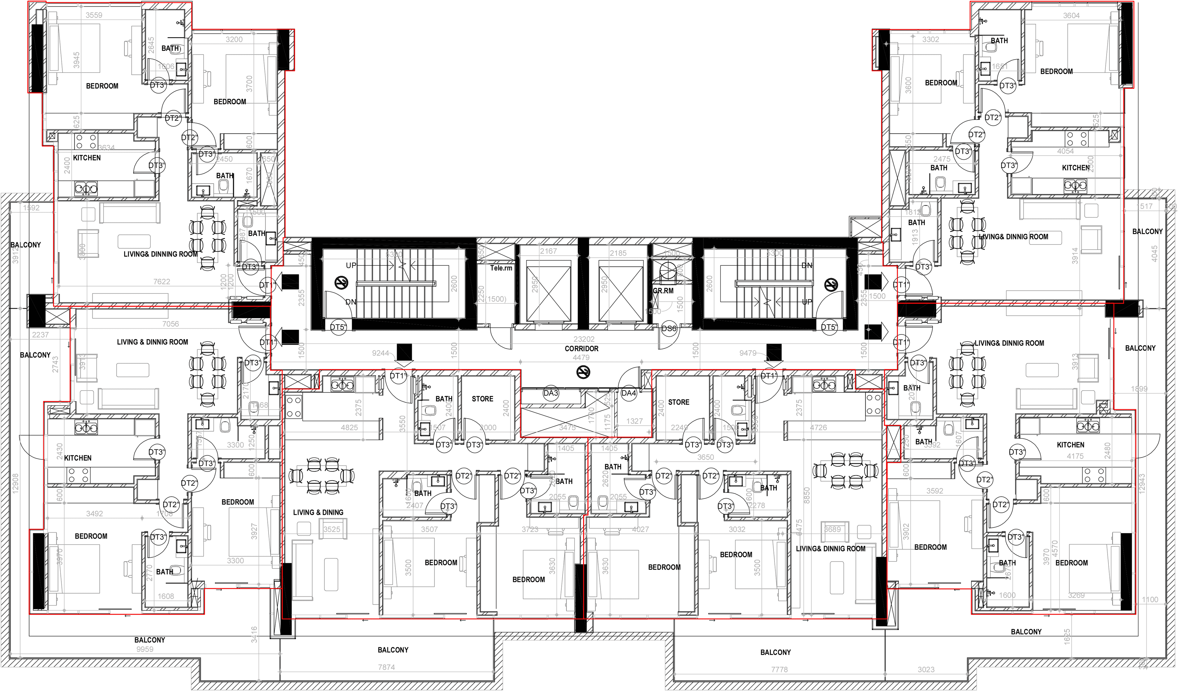
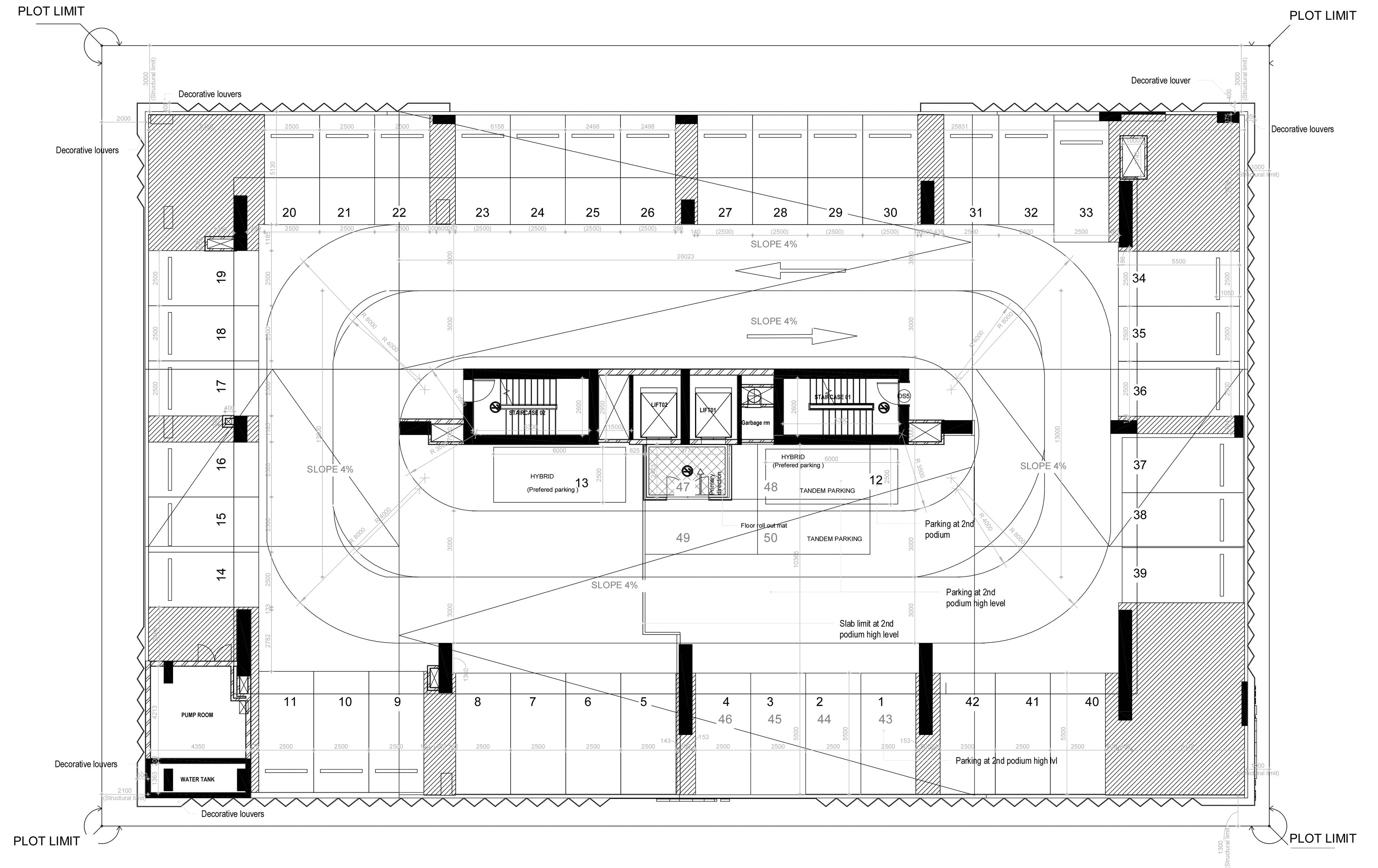
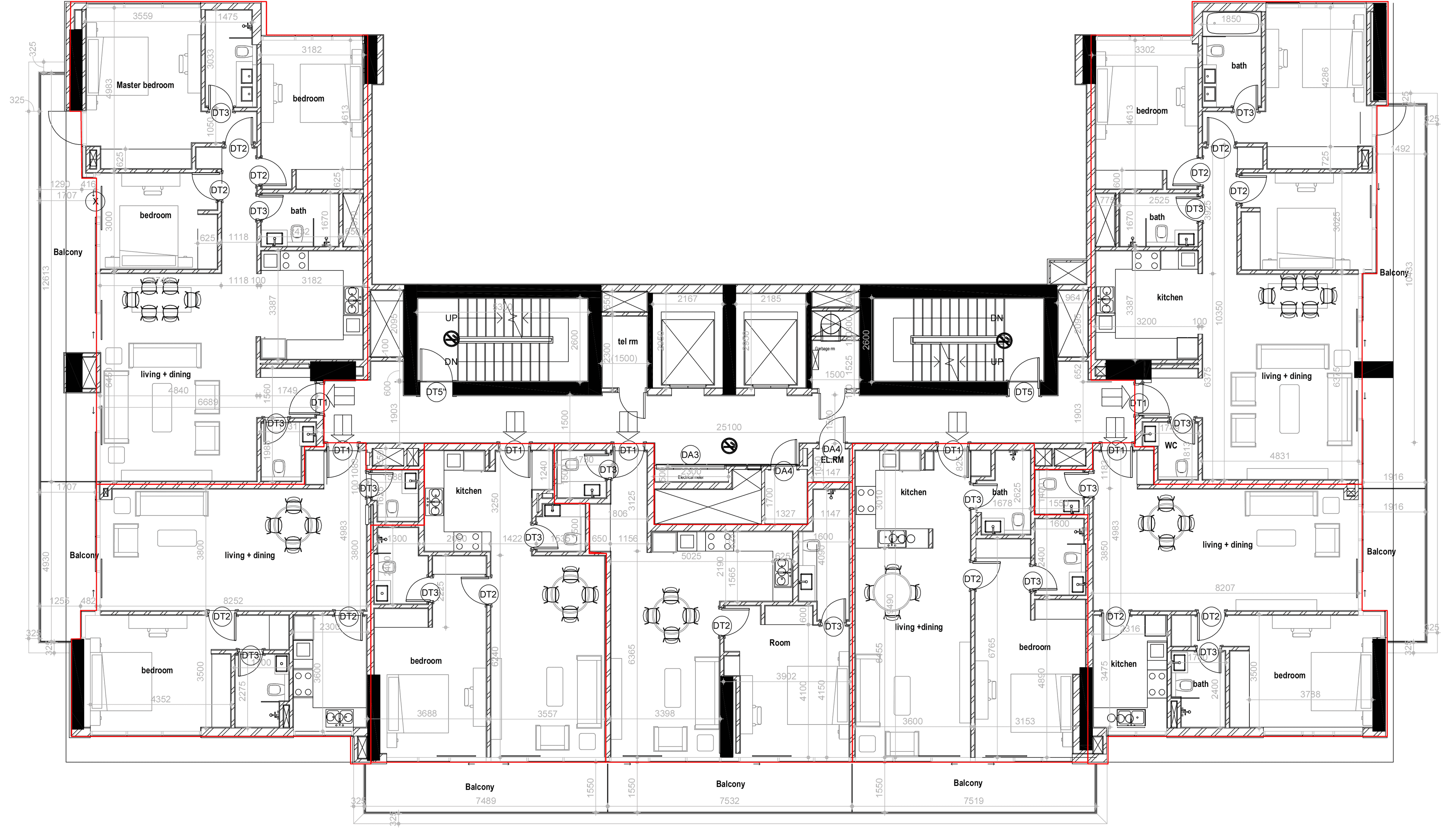
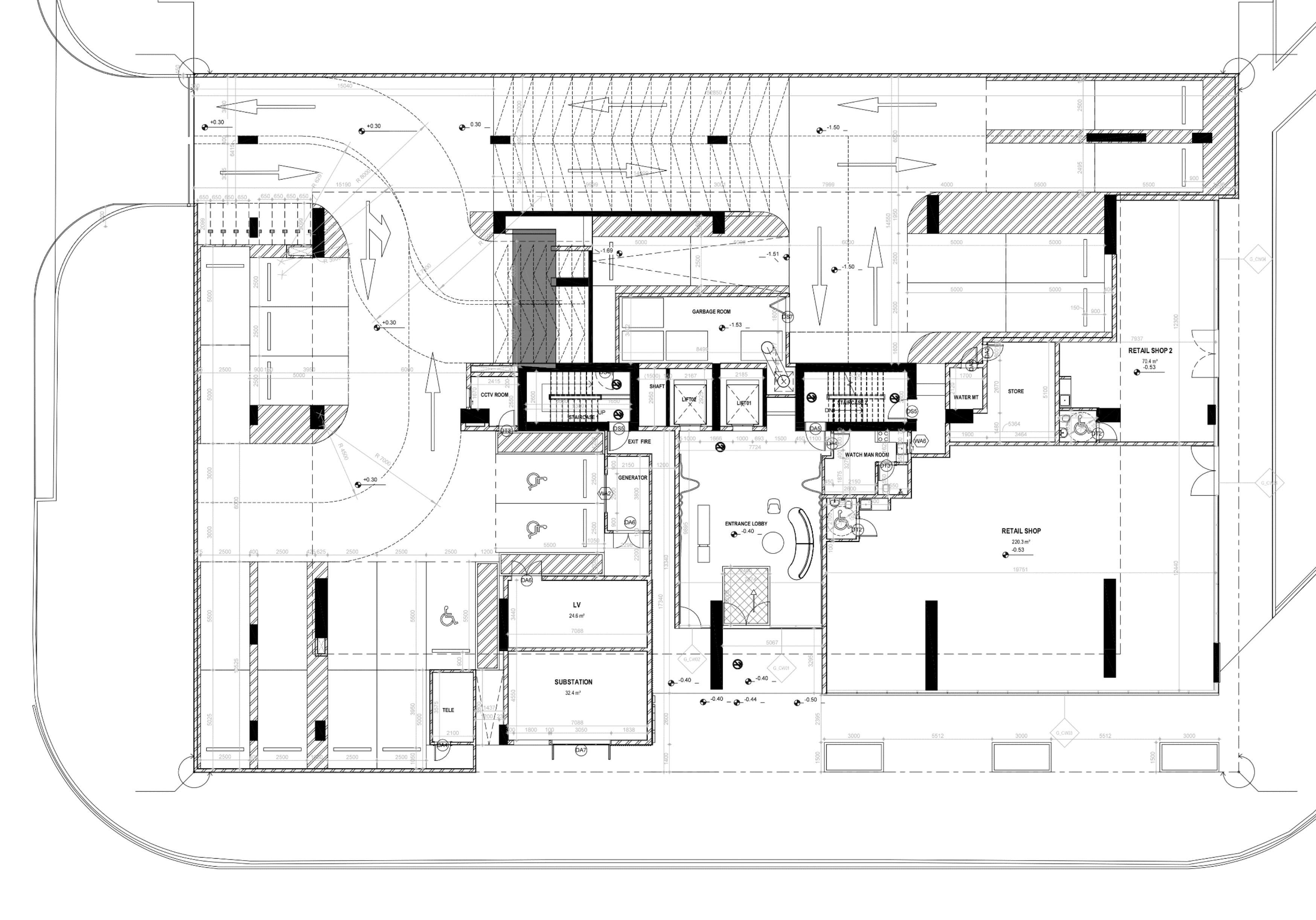
M. Wolf 01, G+2P+HC+13T (Residential), 82 Apartments

Direct Deliverables

Taking over the project from the concept stages until obtaining the project’s building permit, in alignment with the main contractor, managing all parties involved in the design. As well as, being the client rep. against the contractor and all subcontractors.

Details

Size

18,500 SQ.M

Client

Malina W1 Real Estate LLC

Date

2024

Status of the project

Under construction

Location

Dubai, UAE

Role

Design Manager

Direct scope

Pre-concept to Building permit

Sketches

Interior Spaces

Ahmed Eid

UAE, Dubai, JVC | (+971)561651671 | aeid.gadalla@gmail.com

© Ahmed Eid, 2025