The Floating Lido

Project overview

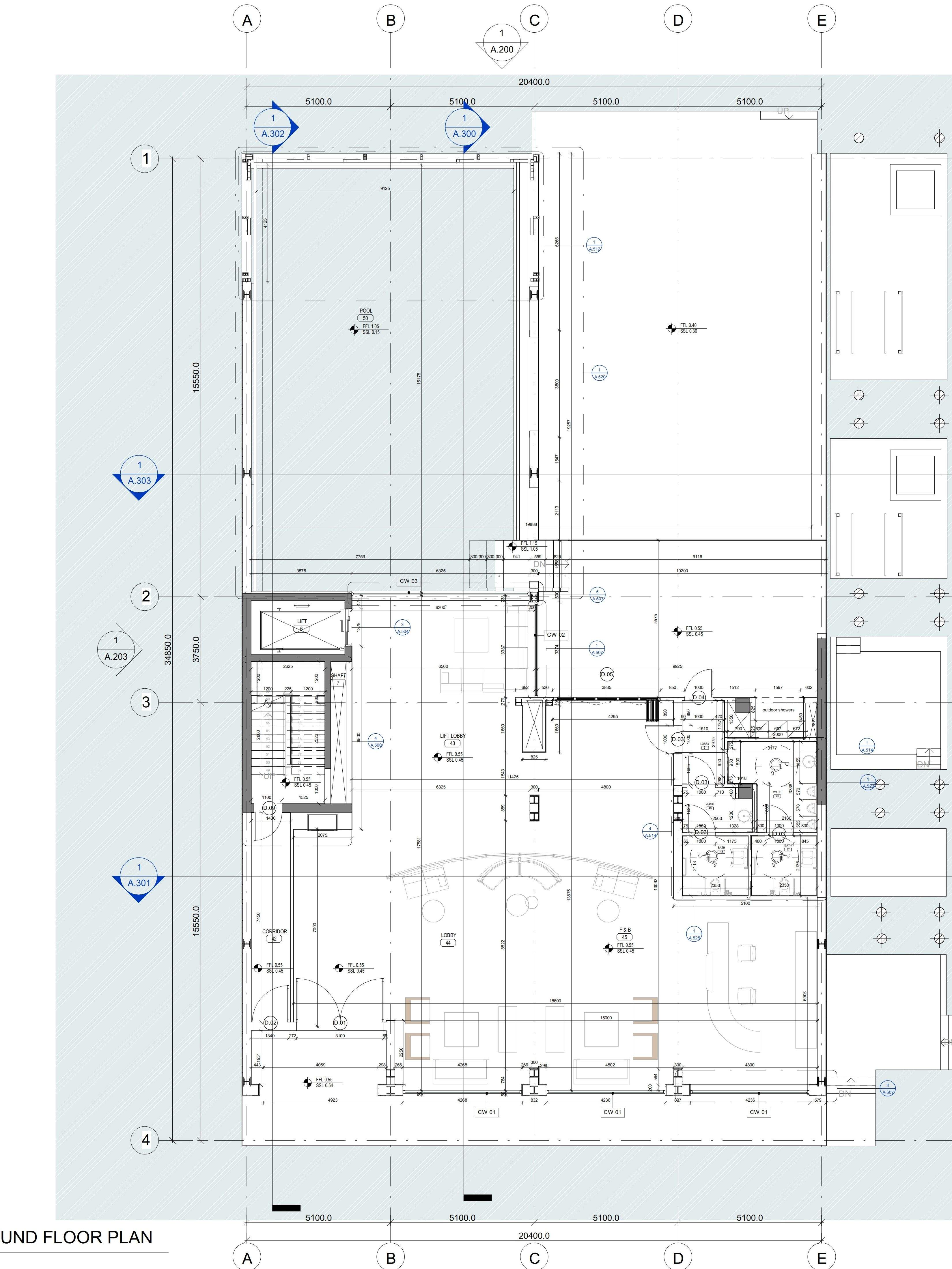
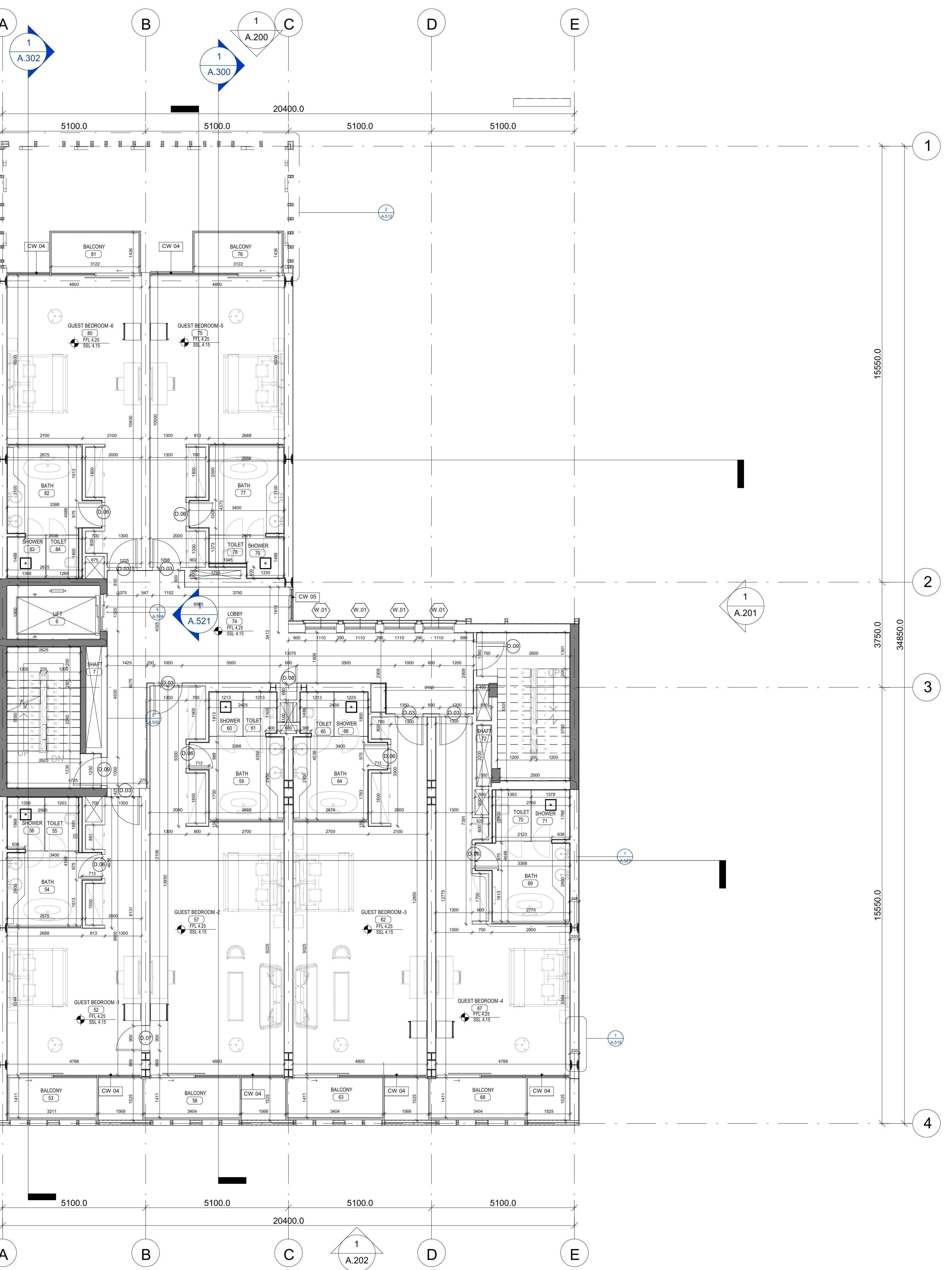
Floating Ledo, 2UW+2G+4T+R (Hotel), 40 Unites

Direct Deliverables

Lead Architect on the Schematic & Design development managing all the sup specialists on the first challenging floating building in Dubai “Marine, Environmental, Structural” and obtaining the authority approval on the BP.

Details

Size

4,630 SQ.M

Client

The Heart of Europe

Date

2024

Status of the project

Under construction

Location

Dubai, UAE

Role

Lead Architect

Direct scope

Schematic to Building permit

Sketches

Ahmed Eid

UAE, Dubai, JVC | (+971)561651671 | aeid.gadalla@gmail.com

© Ahmed Eid, 2025