The Place

Project overview

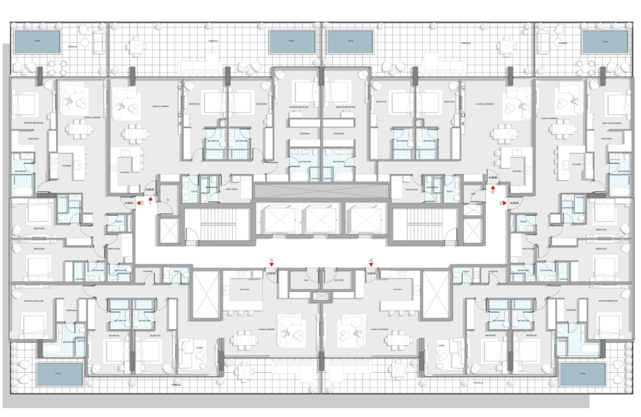
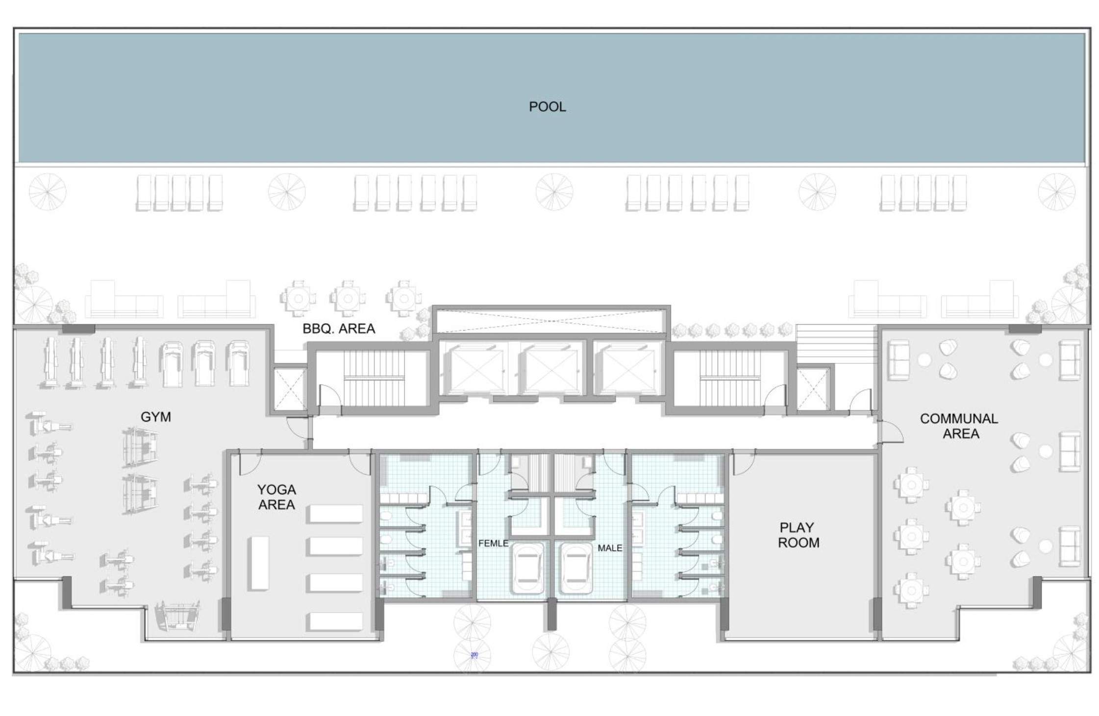
The Place, 2B+G+HC+14T (Residential), 188 Apartments

Direct Deliverables

Managing a design team to provide full design sketches and drawings starting from the pre-design concept sketches till the tender documents, applying to client needs and frequently modifications and updates requested as well as following up with authority requitements.  

Details

Size

27,920 SQ.M

Client

The Place Group

Date

2025

Status of the project

Under permitting

Location

Dubai, UAE

Role

Design Manager

Direct scope

Pre-concept to Building permit

Sketches

Ahmed Eid

UAE, Dubai, JVC | (+971)561651671 | aeid.gadalla@gmail.com

© Ahmed Eid, 2025